T4 - PIETROSELLA











Détails
| Référence: | 2689 |
|---|---|
| Prix: | 465 000€* |
| Type: | Appartement |
| Localisation: | PIETROSELLA |
| Surface terrain: | 128 |
| Surface habitable: | 85 |
| Terrasse: | 42 m² |
| Pieces: | 4 |
| Wc: | 2 |
| Chambre: | 3 |
| Salle de bain: | 1 |
| Salle d'eau: | 1 |
| Cuisine: | Ouverte équipée |
| Exposition: | Sud-Ouest |
| Chauffage: | Climatisation/chauffage réversible |
| Etat: | Excellent état |
| Charges: | 253 Euros / trimestre |
| Dpe: | A49 |
| Ges: | A1 |
Pietrosella à 2 min des plages
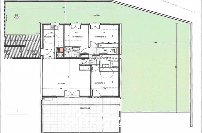
Bel appartement traversant de type T4 de 85 m², bénéficiant d'une grande terrasse de 42 m² et d'un vaste jardin privatif de 128 m².
Il se compose d'une entrée donnant sur un séjour avec salle à manger et cuisine ouverte équipée, de deux WC, d'une salle de bain, d'une salle d'eau, de trois chambres, dont deux avec accès direct au jardin et une donnant sur la terrasse. Le séjour s'ouvre directement sur une superbe terrasse ensoleillée et exposée Sud-Ouest, offrant un ensoleillement tout au long de la journée. Un bien rare offrant de beaux espaces extérieurs, une belle luminosité et un agencement fonctionnel.
Une place de parking complète ce bienÂ
Cette vente est exclusivement réservée à un achat en résidence principale.
Nombre de lots dans la copropriété : 54Â
Charges de copropriété : 253 Euros / trimestreÂ
Prix : 465 000 Euros
Dont 4.49% d'honoraires TTC à la charge de l'acquéreurÂ
![]() |
A49 |
![]() |
A1 |
* Dont 4.49% d'honoraires TTC à la charge de l'acquéreur



Partager sur Facebook
